WWW.茄子AV.COM,茄子AV网站,茄子视频黄色电影,黄色茄子视频下载



聯係WWW.茄子AV.COMmore+
河南WWW.茄子AV.COM管道科技有限公司
地址:鞏義市西村鎮管道產業園
聯係電話:15515887365​(同微)
聯係時可以說明是從【WWW.茄子AV.COM官網】來的,感謝您的信任!
固話:0371-64109916
波紋補償器您當前所在的位置:首頁>>產品世界>>波紋補償器瀏覽正文

複式拉杆橫向波紋補償器_小拉杆補償器生產廠家

更多
更新時間:2013-10-23 08:22:27 來源:本站 點擊數:
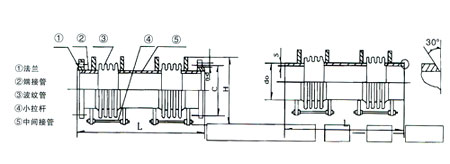
 拉杆橫向型波紋補償器 

 


  小拉杆橫向型波紋補償器使用說明: 小拉杆橫向波紋補償器除可以補償彎曲管道的橫向位移和角位移,同時也可以補償軸向位移。我公司是波紋補償器、不鏽鋼金屬軟管、金屬軟管、非金屬補償器、橡膠軟接頭、套筒補償器、茄子AV网站的專業生產製造商,是國內同類產品的大型骨幹企業和製造基地。小拉杆橫向波紋補償器具有尺寸準確、表麵整潔無創傷、產品結構緊湊、補償量大、無泄漏、耐腐蝕、壽命長,便於安裝、產品質量可靠等優點。同時我公司也可根據用戶工作環境、條件以及疲勞破壞次數,為用戶研製其它類型和用途的波紋補償器。

 
 


主推產品:茄子AV网站、柔性茄子AV网站、07FS02防護密閉套管、伸縮器、伸縮接頭、傳力接頭
WWW.茄子AV.COM管道 備案:豫ICP備66678922號-5
地址:鞏義市西村鎮管道產業園   聯係電話:15515887365​(同微) 聯係人:李經理
聯係時可以說明是從【WWW.茄子AV.COM官網】來的,感謝您的信任! 站點地圖
網站地圖